Romaniuk Studio

R O M A N I U K    S T U D I O

Project: Cabrils Hillside Home, Private Residence, Spain
Client: Private
Year: 2022

 

Set in the Mediterranean hillside just north of Barcelona, the private family home in Cabrils exudes an honesty in its design language. We have worked to remove clutter and excess elements within its structure to give it a light and airy expression, blurring the lines between inside and outdoors, while creating a natural and comfortable flow through the space.

 

OPRACOWANIE TECHNICZNE

To etap, w którym wizja ogrodu zostaje przełożona na kompletny i precyzyjny zestaw dokumentów gotowych do realizacji. Projekt obejmuje całą przestrzeń - od układu terenu i nawierzchni, przez zieleń, aż po detale małej architektury. Każdy element jest jasno określony, zwymiarowany, policzony i zaplanowany tak, aby realizacja przebiegała sprawnie, bez nieporozumień i nieprzewidzianych kosztów. Dzięki temu masz pełną kontrolę nad efektem końcowym, budżetem i przebiegiem prac. To moment, w którym ogród przestaje być wizją, a staje się projektem gotowym do wykonania.

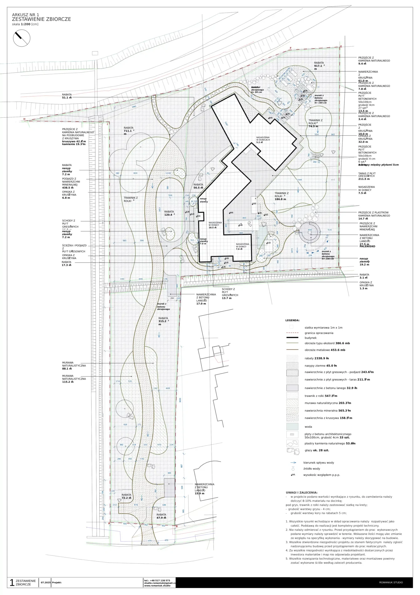
ZESTAWIENIE ZBIORCZWE
Zestawienie zbiorcze to dokument, który zbiera cały projekt ogrodu w jednym miejscu. Pokazuje dokładne ilości i powierzchnie wszystkich elementów, dając pełną kontrolę nad zakresem prac oraz budżetem. To klarowna podstawa do rozmów z wykonawcami i świadomego planowania inwestycji.

UKŁAD NAWIERZCHNI 
Arkusz  definiuje wszystkie powierzchnie utwardzone w ogrodzie – ich przebieg, podziały oraz relacje z otoczeniem. Pokazuje rytm przestrzeni i sposób prowadzenia komunikacji, łącząc estetykę z funkcjonalnością.
Dobrze zaprojektowane nawierzchnie porządkują kompozycję ogrodu, nadają jej elegancję oraz ponadczasowy charakter. Jest to element, który w istotny sposób wpływa na odbiór całej przestrzeni.

Arkusz ten przedstawia wyłącznie kształt oraz układ nawierzchni.

Nie stanowi on kompletnego projektu nawierzchni i nie zawiera informacji o materiałach, wymiarach, ilościach ani rozwiązaniach wykonawczych. Z tego względu nie jest podstawą do sporządzenia kosztorysu ani realizacji prac.

Dla klientów zainteresowanych pełnym opracowaniem oferujemy możliwość zamówienia kompletnego projektu nawierzchni, obejmującego m.in. dobór materiałów, wymiarowanie oraz zestawienia ilościowe.

MAŁA ARCHITEKTURA
W ramach Projektu bazowego opracowujemy koncepcję elementów systemowych, takich jak murki, donice, paleniska, a także wrysowanie basenu oraz innych gotowych elementów wyposażenia ogrodu. Elementy te przedstawiamy w ujęciu koncepcyjnym, określając ich lokalizację, formę, wymiary oraz relacje z otoczeniem.

Projekty obiektów lub stref bardziej złożonych — takich jak ogrodzenia, pergole, altany, place zabaw czy inne indywidualnie projektowane konstrukcje — realizujemy jako rozszerzenie projektu, dostępne za dopłatą.

Liczba elementów małej architektury o charakterze systemowym opracowywanych w ramach Projektu bazowego nie jest ograniczona.

PLAN NASADZEŃ
To jeden z kluczowych arkuszy projektu. Określamy każdy gatunek roślin, jego odmianę, ilość oraz dokładne miejsce sadzenia w przestrzeni ogrodu. Każda roślina jest zaplanowana w relacji do pozostałych, tak aby całość tworzyła harmonijną, spójną kompozycję na lata.
W przypadku większych założeń oznacza to często tysiące roślin dobranych i rozmieszczonych z najwyższą dokładnością. Dzięki temu ogród dojrzewa zgodnie z przyjętymi założeniami projektowymi. To fundament ogrodu na lata.

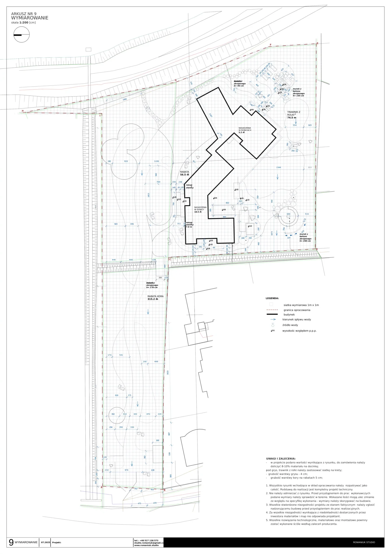
WYMIAROWANIE
Ten arkusz przekłada wizję ogrodu na precyzyjny układ przestrzenny. Określamy dokładne wymiary wszystkich elementów, dzięki czemu każdy fragment ma jasno wyznaczone miejsce. To czytelna mapa realizacyjna, która eliminuje domysły i zapewnia zgodność wykonania z projektem.